Mixed-use Lightwood Structure Student Residency
one: Zone 6
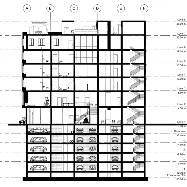
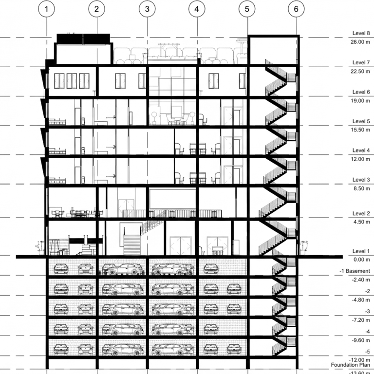
Building type: Student residence
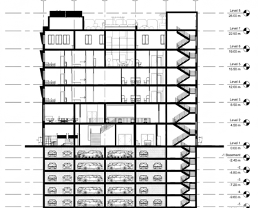
Number of storeys: 6
Basement: 5 basement for car parking and bicycle
Gross floor area: 951.4 Sq.m²
Net Area = 701m² (G/N=73%)
Building height: 28.5 meters
Construction type: Light wood
Structure: Combustible
Sprinklered or not: Sprinklered
Survey
Location


Total area
Location: 110-111 Gerrard St E, Toronto, ON M5B 1G8
Surrounding Context




1254.22 m2
Setback
North (Gerrard St.): 2 m minimum for the ground floor; 1 m minimum for all upper floors
West (Mutual St.): 1 m minimum
East: 2 m minimum
South: 3 m minimum
Location: 110-111 Gerrard St E, Toronto, ON M5B 1G8
BIM / Revit












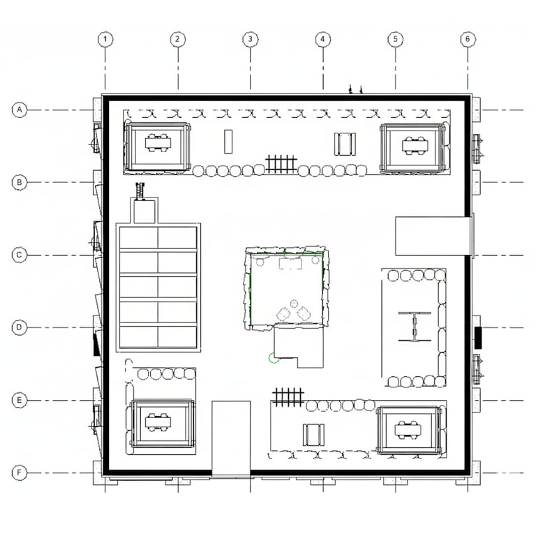
Roof plan
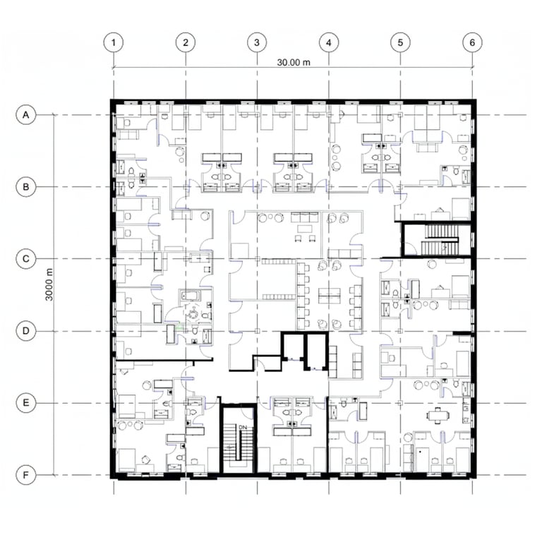
Typical 5 & 6
Typical 3 & 4
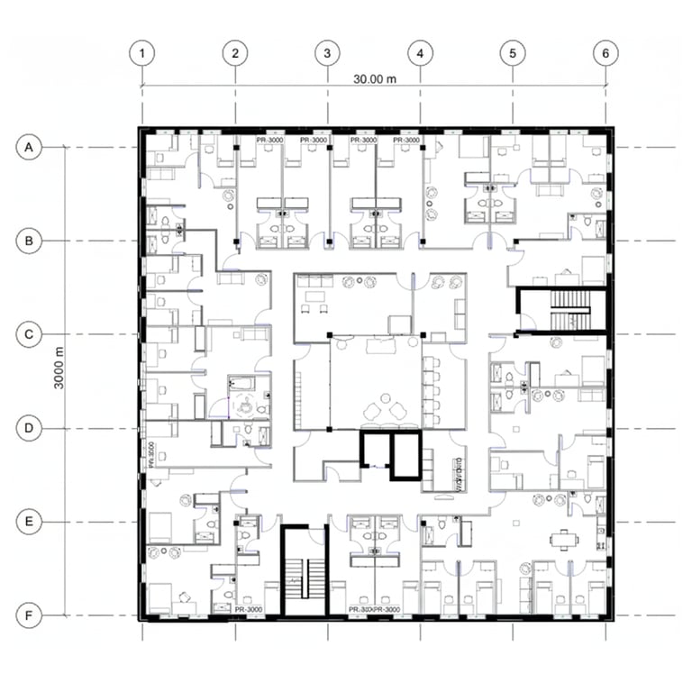
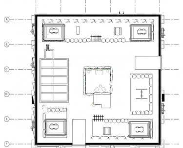
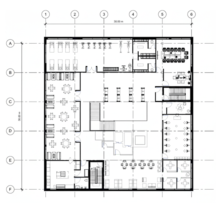
Second floor
First floor
Typical -1 to -5 basement




Section 1-1
Section 2-2
Visualization (Enscape - GenAI)
All architectural geometries were fully modeled in Revit, with space-specific furniture and materials assigned and rendered using Enscape. To streamline the workflow and accelerate visualization, I used customized AI prompts in post-production to add human figures and urban elements, enhancing realism while preserving the original design intent.












Renders
Material and method
Building Envelope (Exterior Wall)
Two separate stud walls (inner + outer) create a deep insulation cavity
Staggered or spaced studs reduce thermal bridging through the structure
Dense-pack cellulose or mineral wool fills the entire cavity for high R-value
Continuous air barrier placed on the warm side (taped OSB or smart membrane)
Continuous exterior insulation added behind cladding for improved performance
Brick veneer rain-screen provides drainage, ventilation, and moisture control
Thermally broken brick ties and shelf angles maintain insulation continuity
Triple-glazed Passive House windows integrated with insulated window bucks
Carefully sealed junctions at roof, floor edges, and openings to maintain airtightness
High-performance assembly ensures low heating demand, comfort, and durability.


This envelope design controls moisture and air movement through several coordinated strategies.
High-quality insulation installation and careful detailing ensure long-term performance and protect the assembly from moisture-related damage.
The Purpose




13mm GWB - PAINT FINISH
38x140mm WOOD STUDS @ 406mm OC TO U/S OF FLOOR DECK/SLAB ABOVE
140mm MINERAL WOOL BATT INSULATION
13mm GWB - PAINT FINISH
WALL ASSEMBLY- INTERIOR PARTITION WALL


7mm VINYL FLOOR FINISH
19mm T&G PLYWOOD SUB
FLOOR FLOOR JOISTS (SEE STRUCTURAL)
FILL CAVITY W. SOUND ATTENUATING MINERAL WOOL BATT INSULATION 13mm RESILIENT STEEL CHANNELS SPACED @ 610mm OC
13mm GWB - PAINT FINISH
FLOOR ASSEMBLY - RESIDENTIAL


Growing Media (15 mm): Provides a lightweight growth substrate that minimizes dead load to reduce structural stress.
Drainage and Filter Layer: Manages water runoff to prevent soil saturation and excessive weight on the roof.
Insulation (10 mm): Reduces thermal exchange and protects the structural deck from stress caused by temperature fluctuations.
Root Barrier and Waterproof Membrane: Forms an impermeable shield that prevents root penetration and moisture damage to the building's skeleton.
Structural Support: Acts as the foundation layer to safely bear and transfer the combined weight of the green roof system to the columns.
FLOOR ASSEMBLY - RESIDENTIAL


Sustainability


This diagram highlights the building’s core sustainability strategies, including a high-performance airtight envelope, triple-glazed operable windows with solar shading, efficient heat pump systems, and a solar chimney for natural ventilation. Solar panels, a green roof, and community gardening further support energy efficiency, comfort, and sustainable student living.




Solar-shading overhangs are sized and positioned to control seasonal sunlight and support natural ventilation in the Passive House student residence.
Sun path implication - winter
Sun path implication - summer
Operable window with overhang
Building Code
This project is informed by the Ontario Building Code (OBC) 2024, with Part 3 serving as a key framework for design decisions. Code requirements guided the resolution of egress, exit travel distances, unprotected openings, and life safety measures, directly influencing the building’s spatial organization and circulation. The result is a design that integrates regulatory compliance with clear, efficient architectural planning.


Occupancy Classification
Ground Floor: Group D & E
First Floor: Group A-2
Floors 2–5: Group C (Residential)
Basements: Group F-3 (Parking)
Occupancy Load Summary
Ground Floor: 88 persons
Residential Floors: 208 persons
Calculated Total: 288 persons
Design Load Used: 300 persons








This project is a six-storey mixed-use student residence designed in compliance with the latest edition of the Ontario Building Code (OBC). The building code analysis addresses life safety requirements with a focus on means of egress, occupant load, fire-resistance-rated separations, and exit configuration. A looped corridor system provides continuous access to multiple exits, while exit stairs are separated by fire-rated vestibules to enhance safety and code compliance. Egress widths for corridors, stairs, and doors are calculated based on OBC factors and coordinated with the architectural layout to ensure clear, efficient, and compliant evacuation routes throughout the building.

































