
Sky-Seer
House
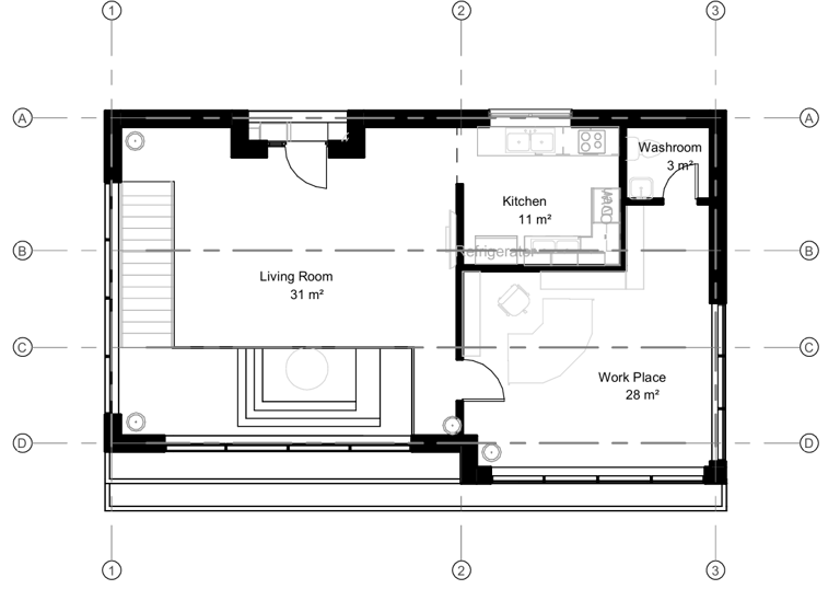
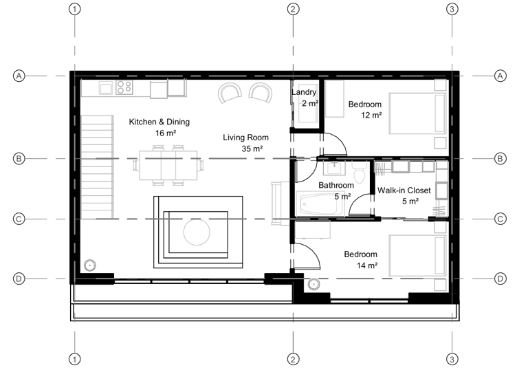
Plans


In this villa project, the sunken living room is designed as a warm, intimate, and inviting space that encourages conversation and social interaction. By offering an uninterrupted, expansive view toward the sea, the space establishes a strong visual and spatial connection between the interior and the surrounding natural landscape.
Lowering the living room level, combined with a generous ceiling height and a glass dome above, allows natural light to penetrate deeply into the space, enhancing its spatial quality and creating a distinct architectural focal point. The concept of the sunken living room is inspired by the traditional korsi in Iranian architecture—an element historically used as a warm, communal gathering space during colder seasons—which has been reinterpreted in this project through a contemporary architectural lens.










Sections












These sectional visuals were developed using Enscape with integrated generative AI workflows, showcasing the ability to translate design intent into high-quality architectural representations through advanced AI-assisted visualization techniques.
Stairs






This open-riser stair enhances spatial continuity and visual lightness within the villa by allowing natural light to penetrate deeper into the interior and maintaining strong visual connections between levels. Designed as both a circulation element and a sculptural feature, it contributes to the openness and elegance of the living space. Structurally, the stair is supported by concealed steel stringers anchored to the primary structure, with timber treads mechanically fixed through hidden connections. This steel–wood hybrid system ensures structural stability, efficient load transfer, and a clean, minimal architectural expression well-suited for contemporary villa design.


The Dome


This project explores a parametric dome designed using Revit’s Curtain Panel system with a Rhomboid pattern. A custom Metric Curtain Panel Based family was developed, allowing key parameters such as profile material and profile radius to be controlled directly from the Properties panel.
The parametric setup enables fast design iterations without re-modeling, making the system flexible for conceptual studies, material exploration, and architectural visualization. The result is a clean, coherent dome geometry with a clearly articulated structural grid.








GenAI and Render Gallery






















