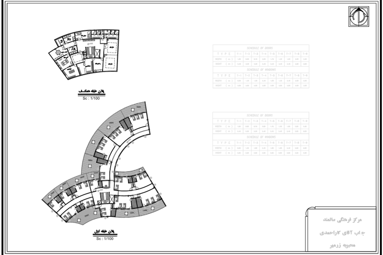
Senior Cultural Complex







First Floor
Concept
Client: the Urban Design and Engineering Organization of Isfahan Municipality
Location: Esfahan, Iran / Year: 2015
Role: Architect & Drafter
Software: Revit, AutoCAD, Enscape
The project proposes a mixed-use complex for seniors, combining residential units, a medical clinic, and a cultural center, designed to address physical, social, and emotional needs while drawing inspiration from the Persian Boteh Jegheh motif to foster identity, dignity, and belonging.
Plans










Ground Floor
Site Plan
First Floor
Elevations
Sections
